Skip to main content
 

Hi, neighbor! This page highlights some of the special neighborhoods and larger-scale developments that are underway here at Pensacola Habitat for Humanity! At these special locations, you can stay and thrive, benefiting from the social, professional, health, economic, and educational advantages that come with living in a safe, stable, and committed community. To learn more about general requirements, you can visit pensacolahabitat.org/requirements or call our office at 850-434-5456.

 

Hancock Meadows

 

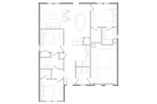
Hancock Meadows is thoughtfully designed, mixed-income neighborhood that represents a new, elevated approach to affordable homeownership in Pensacola. It will feature 33 beautifully crafted homes with 2–4 bedroom floor plans, attached garages, and intentional neighborhood design focused on comfort, quality, and connection. Each home is an energy‑efficient new build, backed by Pensacola Habitat for Humanity’s trusted, award‑winning legacy. Take a look at the unique new floor plans offered in Hancock Meadows!

The Yaupon

This two bedroom, two bathroom floor plan is the perfect option for individuals and smaller family units to call home.

The Magnolia

This two bedroom, two bathroom floor plan is the perfect option for individuals and smaller family units to call home.

The Sweetbay

This three bedroom, two bathroom floor plan is the perfect option for medium sized families.

The Redbud

This three bedroom, two bathroom floor plan is the perfect option for medium sized families.

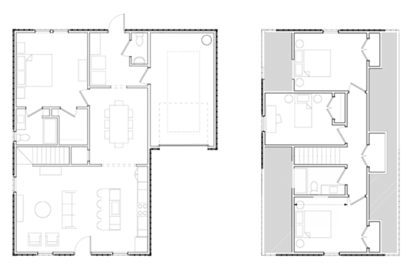
The Live Oak

This four bedroom, two-and-a-half bathroom floor plan is two stories tall, with a primary bedroom on the main floor and three additional bedrooms upstairs, making it perfect for larger families.

Conveniently located less than 10 minutes from Baptist and Ascension Sacred Heart hospitals, the neighborhood offers a peaceful setting with easy access to everyday essentials. Designed for professionals, families, and individuals ready to move from renting to homeownership, Hancock Meadows supports long‑term stability and pride of place. Here, you’ll have the opportunity to build alongside us, belong in a welcoming community, and stay - enjoying the lasting benefits of affordable homeownership.

Here’s just a few of the things to look forward to with a home in Hancock Meadows:

  • Attached garages for every home
  • 9' Ceilings
  • Luxury vinyl plank flooring
  • A tree in each front yard
  • Upgraded all-plywood soft-close cabinets
  • Integrated LED Lights
  • All Moen plumbing fixtures
  • Hardie siding
  • Impact resistant windows
  • and more!

We’re also proud to share that, thanks to our partners at Pen Air Credit Union, Hancock Meadows will include a beautiful community park, creating a welcoming space for play, relaxation, and neighborhood connection.

Homes in Hancock Meadows are expected to be in high demand, and early‑interest applicants will be among the first to receive updates, floor plans, and home selection opportunities as they become available.

start your application today!

To qualify, applicants must meet, at minimum, the following criteria:

  • Be at least 18 years old and a legal U.S. citizen or permanent resident
  • Provide two years of stable, verifiable, documented income, including Social Security or other sources of income OR two years of stable, verifiable, documented part-time or self-employed income
  • Do not have excessive debt or multiple accounts in collection
  • Have not had a bankruptcy or foreclosure finalized in the last two years (limit of 1)
  • Minimum annual gross income of $35,000
  • 620+ Credit Score

Our team is here to support you throughout the process. If you have questions or would like to learn more, please call 850‑434‑5456 Monday - Thursday, 8 a.m. - 4 p.m., or Friday, 8 a.m. - 12 p.m.

Thank you for your interest in Hancock Meadows. We look forward to sharing more details soon and hope to welcome you home in the future!

Play the Video

E Jackson St

 
 

Stay tuned for more information about this upcoming exciting project!

Get Our News Updates!

Sign up for our emails to get the latest news, volunteer opportunities, events, and other ways to get involved with Pensacola Habitat for Humanity.